Продажа коттеджа, село Ославское

5 960 000
17 сентября 2025
  • 17 сентября 2025
1 / 61
Адрес Суздальский район, село Ославское, Набережная д.7а
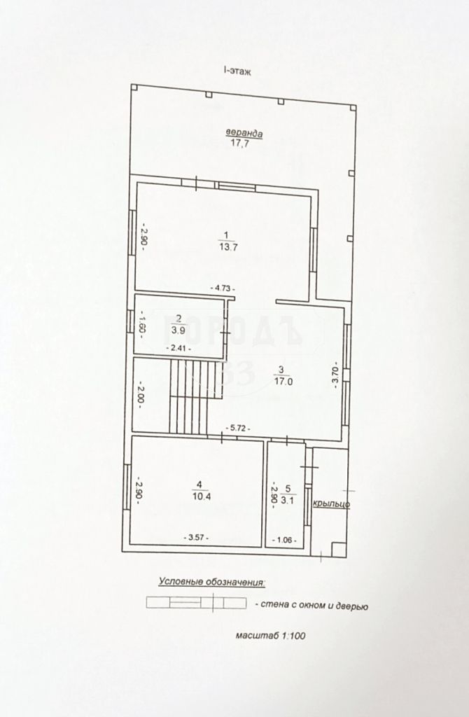
Площадь 120 кв.м.
Площадь земли 9 сот.
Строение 2-этажный Коттедж
Материал стен Деревянный
Крыша Металлочерепица
Фундамент свайный
Вода Центральное в/с
Канализация Центральная
Отопление Автономное (котельная)

Продается новый двух-этажный коттедж, общей площадью 120 кв. м., расположенный на участке 9 соток, в 6 км от г. Владимира в с. Ославское, Суздальского района, ул.Набережная, д.7А.
Дом каркасный, на ленточно-ростверковом фундаменте, фасад отделан металлическим сайдингом. Пол, стены и крыша утеплены, крыша металло-черепица, установлена водосточная система. Отличная цветовая гамма и современная планировка. На первом этаже: кухня столовая, с выходом на большую веранду и панорамным видом, гостинная, гостевая комната, сан.узел и гардеробная. На втором этаже: гостинная, две спальные комнаты, сан.узел. На кухне и в гостинной плитка, установлена лестница, хорошая входная дверь с терморазрывом.
Есть возможность подключения центральной канализации и водоснабжения. Газ по границе.
Перед домом бетонная площадка на два автомобиля. Зeмeльный учaстoк благoуcтpоен и ухожен, имеeт пoдъeзд с двух сторон. Постоянное автобусное сообщение, рядом магазин. Дорога в посёлок в идеальном состоянии, в зимнее время постоянно чистится. Недалеко река Нерль. В 5-ти минутах п. Боголюбово, с. Суромна, с. Новое. Есть вся инфраструктура для жизни: магазины, школа, детский сад и т.д..

Кузин Денис Валерьевич
angorod33@gmail.com
Агентство недвижимости: АН Город33
г.Владимир, Коммунальный спуск д.1, оф.8
angorod33@gmail.com
Все предложения этого агентства